Zašto ugraditi folijska vrata?
- Brzo otvaranje i zatvaranje barijere omoguća-
  va interni transport unutar proizvodnog pro-
  cesa bez nepotrebnog zadržavanja transpor-
  tnih sredstava
- Ovaj sustav odvajanja proizvodnih cjelina o-
  sigurava efikasno odvajanje različitih klimat-
  skih cjelina u proizvodnom procesu
Gdje ugraditi zavjesasta vrata?
- Tamo gdje se traži kratko vrijme otvaranja i
  zatvaranja zavjesnih vrata
       - Brzina otvaranja vrata do 1.4 m/s
       - Brzina zatvaranja vrata do 0.7 m/s
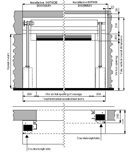
- Male gabaritne mjere vrata s obzirom na svi-
  jetli otvor vrata
       - ukupna visina vrata do 300 mm veća od
         svijetle visine vrata

       - ukupna širina vrata do 500 mm veća od
         svjetle širine vrata
       - debljina konstrukcije vrata ovisno o tipu
         od 240 do 300 mm